2D Floor Plan
Our 2D Floor Plan service focuses on creating precise and technically accurate layouts that form the foundation of every successful project. We carefully design each space to ensure optimal functionality, efficient circulation, and practical room arrangements. Every drawing includes clear dimensions, structural elements, wall placements, door and window positioning, and furniture layout guidance.
These detailed plans allow clients, contractors, and engineers to fully understand the spatial organization before construction begins. By prioritizing clarity and precision, we minimize errors, reduce costly changes, and ensure a smooth transition from concept to execution.
Whether for residential, commercial, or renovation projects, our 2D floor plans provide the essential blueprint for a well-structured and intelligently designed space.
Residential Ground Floor
The ground floor layout is thoughtfully designed to ensure smooth circulation and functional living spaces. It typically includes common areas such as the living room, dining area, kitchen, and guest spaces, creating a welcoming and practical environment.
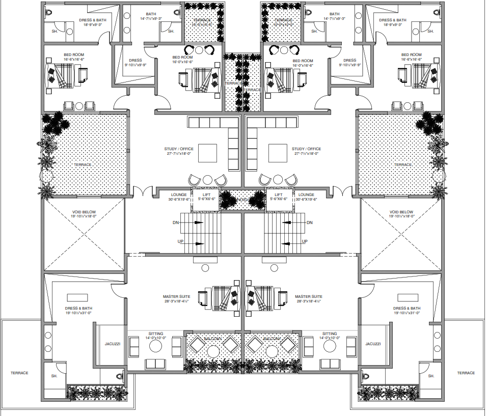
Residential 1st Floor
The first floor is designed to provide privacy and comfort, usually accommodating bedrooms, attached bathrooms, and family spaces. The layout maximizes natural light, ventilation, and efficient space utilization.
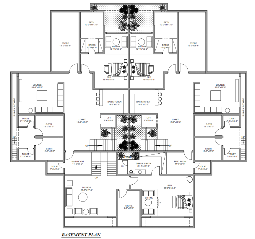
Residential Basement
The basement plan is strategically designed for additional functional space such as parking, storage, entertainment areas, or utility rooms. It ensures structural safety, proper ventilation, and efficient space planning.
- Home
- Projects
- Services
- Pricing
Let's talk about your future projects with us
Copyright © 2023 ASK Project